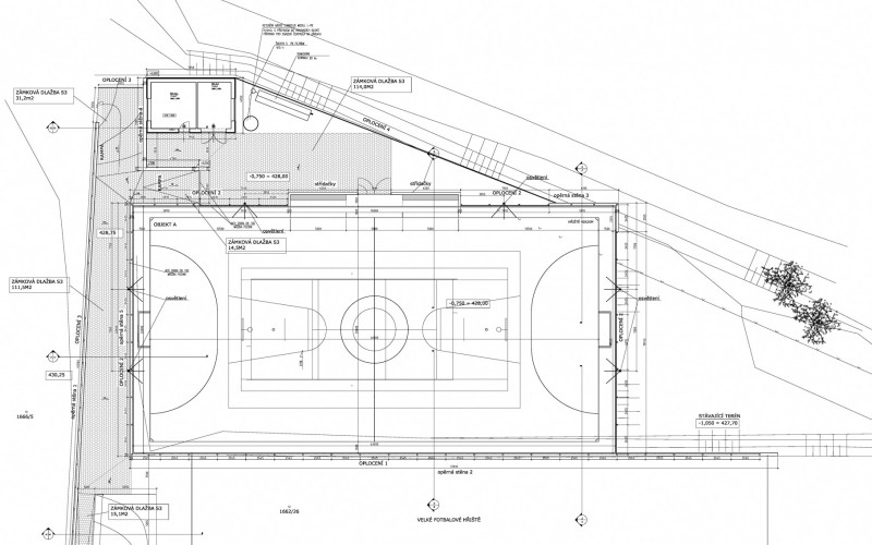
název projektu: Víceúčelové hřiště
datum realizace: 2012
datum realizace: 2012
Víceúčelové hřiště se skladovým objektem
Olbramovice, Středočeský kraj
4,5mil Kč
Lukas Ballek and his studio has provided excellent advice and service to our company in Spain regarding the development of a hotel in Prague. Lukas has been friendly, efficient and proactive - a fantastic combination - Everything was delivered fast and with an outstanding quality. I would definitely recommend working with him as we will work with him again in our future projects in Eastern Europe.
Albert Polo
Head of Alberts Retauració S.L.
- rezidenční projekty
- Horský apartmán_Špindlerův mlýn — Rekonstrukce vily - Ořechovka — Usedlost Truhlářka - Nebušice — Činžovní dům Pštrossova — Přístavba kláštěra Provincie Františkánů Liberec - Ruprechtice — Vila VM — Mlýn Podholí — Statek Úholičky — Vila Božkov — Vila JM — Vila MT — Vila Nosislav — Vila Petrov — Vila R&D — Vila Z&J
- projekty většího rozsahu
- firemní projekty


